Inwestycja oferuje przyszłym mieszkańcom zróżnicowane typy apartamentów zlokalizowane w zabytkowym budynku oraz w nowoprojektowanym obiekcie. Mieszkania o metrażach od 50 m2 do 120 m2 z kilkoma propozycjami układów pozwalają dostosować przestrzeń pod swoje indywidualne potrzeby. Mieszkania zlokalizowane na parterze mają dostęp do prywatnych ogrodów o powierzchni do 400 m2 natomiast lokale na wyższych kondygnacjach do balkonów i tarasów o powierzchni do 150 m2.




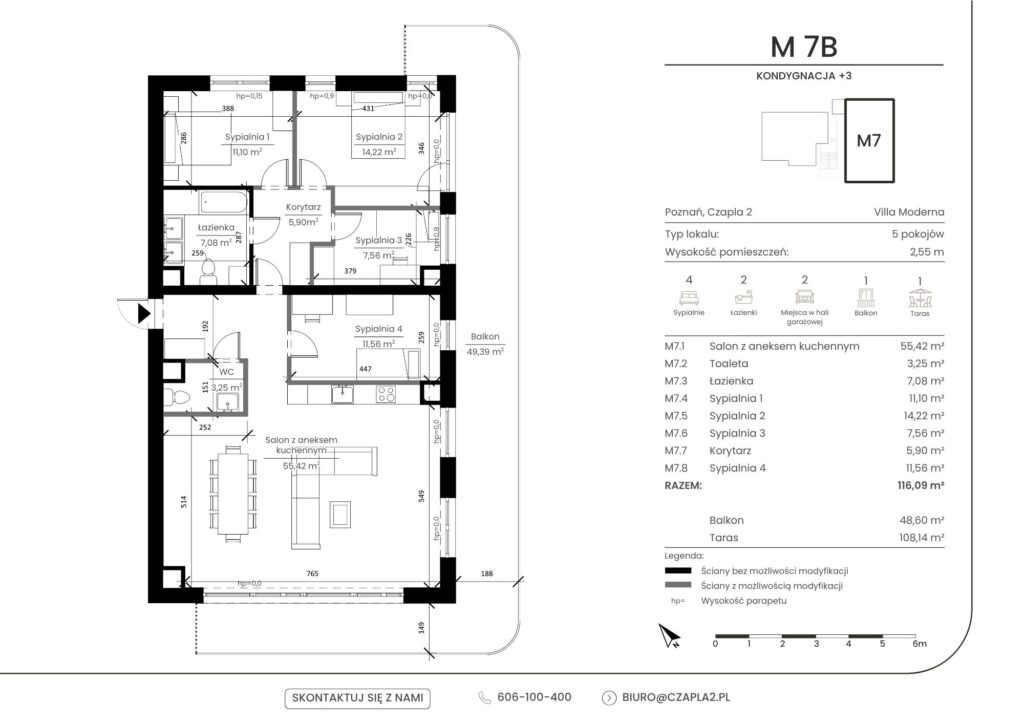
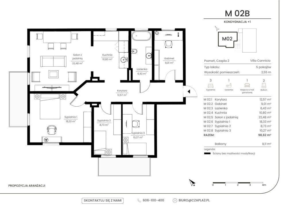
Karty lokali























